top of page

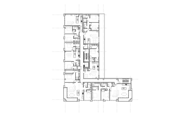
1737

date. 2017 - in progress

city.   philadelphia, pa

type. mix-use

          - 18 residential units

          - 20 parking stalls

          - 5,000 retail space

size.  35,000 sf

Succulents
bottom of page